ELEKTRANT PROFI IQ-E



Elektrant Profi IQ-E


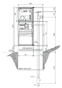
Konstruktionszeichnung Elektrant Profi IQ-E



1 Elektrosäule
B = 480mm H = 1200mm T = 300mm, aus RAL 6009 tannengrün pulverbeschichtet
1 Wassersäule
B = 300mm H = 1200mm T = 300mm, aus RAL 6009 tannengrün pulverbeschichtet
2 Doppelbartvorreiber
1 Zylinderschloß Sperre 3113 A mit Schlüssel
1 Sockel
für Elektrant 780mm x 900mm x 300mm, aus feuerverzinktem Stahlblech
1 Rohrschelle

2" mit Montagebügel
1 Satz Aluverschienung 30 x 10mm, 4-polig, höhenversetzt inkl. Sockel
1 NH Trenner Gr. 00 komplett mit Patronen für Direktmontage
1 EZ Element komplett 20A
1 FI Schutzschalter 4 x 63A
1 LS-DI L 16 A 30mA
1 CEE Steckdose 63A PCE 63
1 Maschinensteckdose 230V
1 Steuersteckbuchse 24 pol. schwere Ausführung
24 Reihenklemmen
1 Steuerkabel 20 pol. 1,5m geschirmt
mit erforderlichem Kleinmaterial und Berührungsschutz




S.NOW Schneesysteme